关于融水县残疾人托养中心楼项目建筑效果规划设计方案调整规划通告
关于融水县残疾人托养中心楼项目建筑效果规划设计方案调整规划通告
项目位于融水镇民族路,设计方案曾于2016年10月20日通过审批。现融水苗族自治县残疾人联合会向我局提出申请,调整融水县残疾人托养中心楼建筑效果规划设计方案。
此次规划方案调整内容如下:
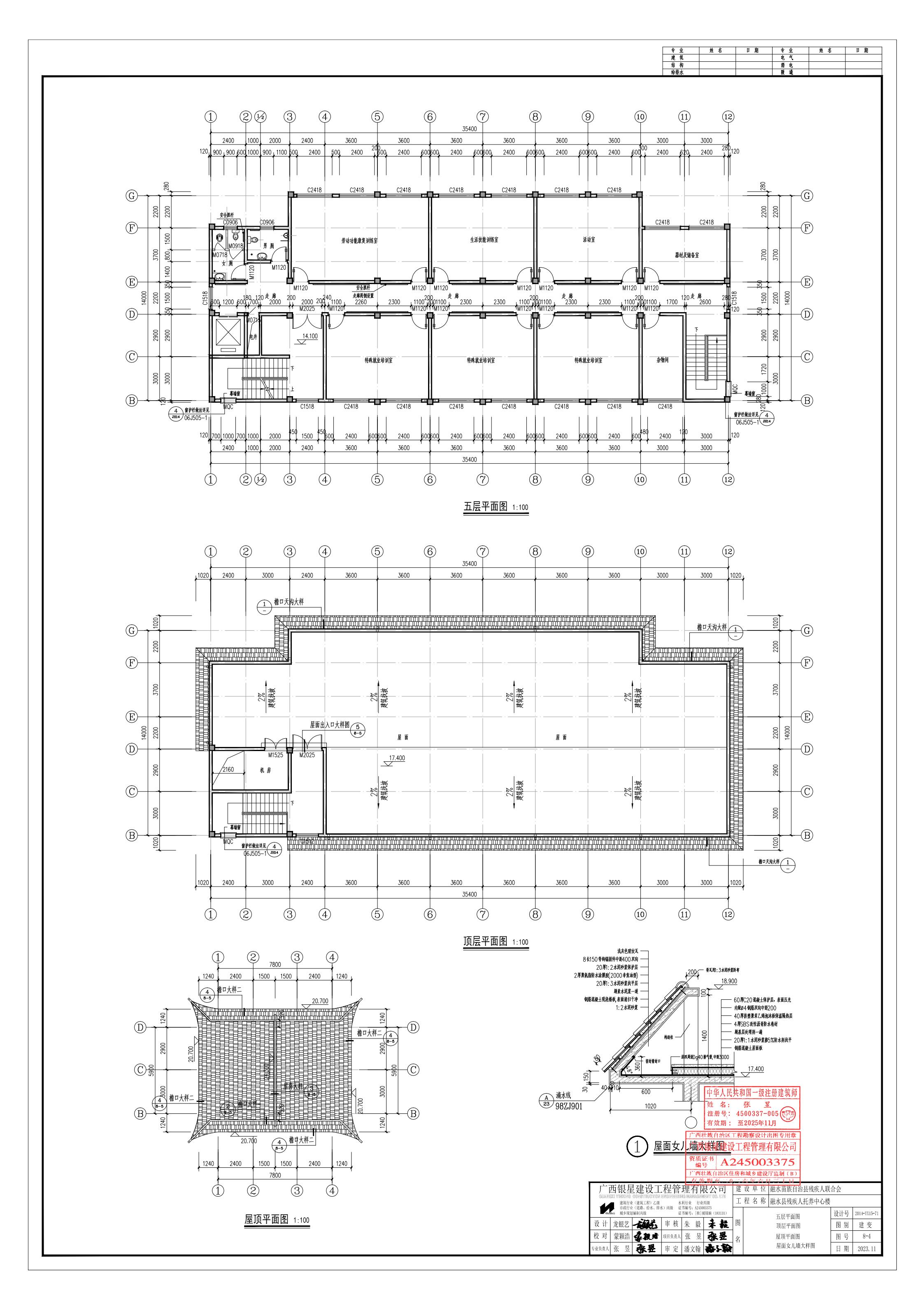
(一)原方案建筑A-B轴与(10)-(11)轴处装饰构件,外挑梁未直接与建筑主体柱子连接,业主对建筑的整体稳固,施工便捷考虑,取消此处建筑装饰构件。
(二)原方案顶层平图中檐口雨棚仅至B轴与(4)轴交界处,外挑檐口雨棚未直接与建筑主体柱子连接,业主对建筑的整体稳固,施工便捷考虑,顶层檐口雨棚延伸至B轴与(3)轴交界处。由于檐口延伸至B轴与(3)轴交界处,原位于B轴与(3)-(4)轴交界处的窗C1518(宽1.5米高1.8米)的窗台抬高,此窗高度变小,窗变为C1512(宽1.5米高1.2米)。
(三)原方案所有建筑入口均设钢化玻璃雨棚,钢化玻璃雨棚为后期加装,由于融水县潮湿天气居多,考虑到建筑的耐久性和安全性,取消玻璃钢化雨棚。
二、根据《中华人民共和国城乡规划法》及相关法律法规的规定,现按有关程序将融水县残疾人托养中心楼建筑效果规划设计方案进行公示,征求利害关系人意见,并召开听证会。
三、相关利害关系人对上述调整方案的意见,可通过书面方式或在听证会上发言的方式提出。书面意见和参加听证会申请请于2024年1月23日前送至融水苗族自治县自然资源和规划局规划股(联系电话: 0772-5129737)。
四、听证会参加人员应于2024年1月24日前向听证会提交参加听证会申请及个人身份证明、利害关系证明,并准时参加听证会,对听证会主持人员组成有异议的,应在会前提出。参加听证会的共同利害关系人人数较多的,应选取代表作为发言人,其余参加会议的共同利害关系人可通过书面或委托代表发言的方式表达意见。
五、公示地点:融水县残疾人托养中心楼项目所在地、及广西柳州融水苗族自治县人民政府门户网站(http://www.rongshui.gov.cn/xwzx/tzgg)。
六、公示时间: 2024年1月16日至2024年1月23日。
七、听证时间: 2024年1月24日上午11点00分听证地点:融水苗族自治县自然资源和规划局五楼会议室。
融水苗族自治县自然资源和规划局
2024年1月16日








桂公网安备 45022502000001号
