通知公告

清水湾项目总平面规划设计方案调整通告

来源:融水县自然资源和规划局

发布日期: 2025-06-13 17:48    |  作者: 融水县自然资源和规划局

清水湾项目总平面规划设计方案调整通告

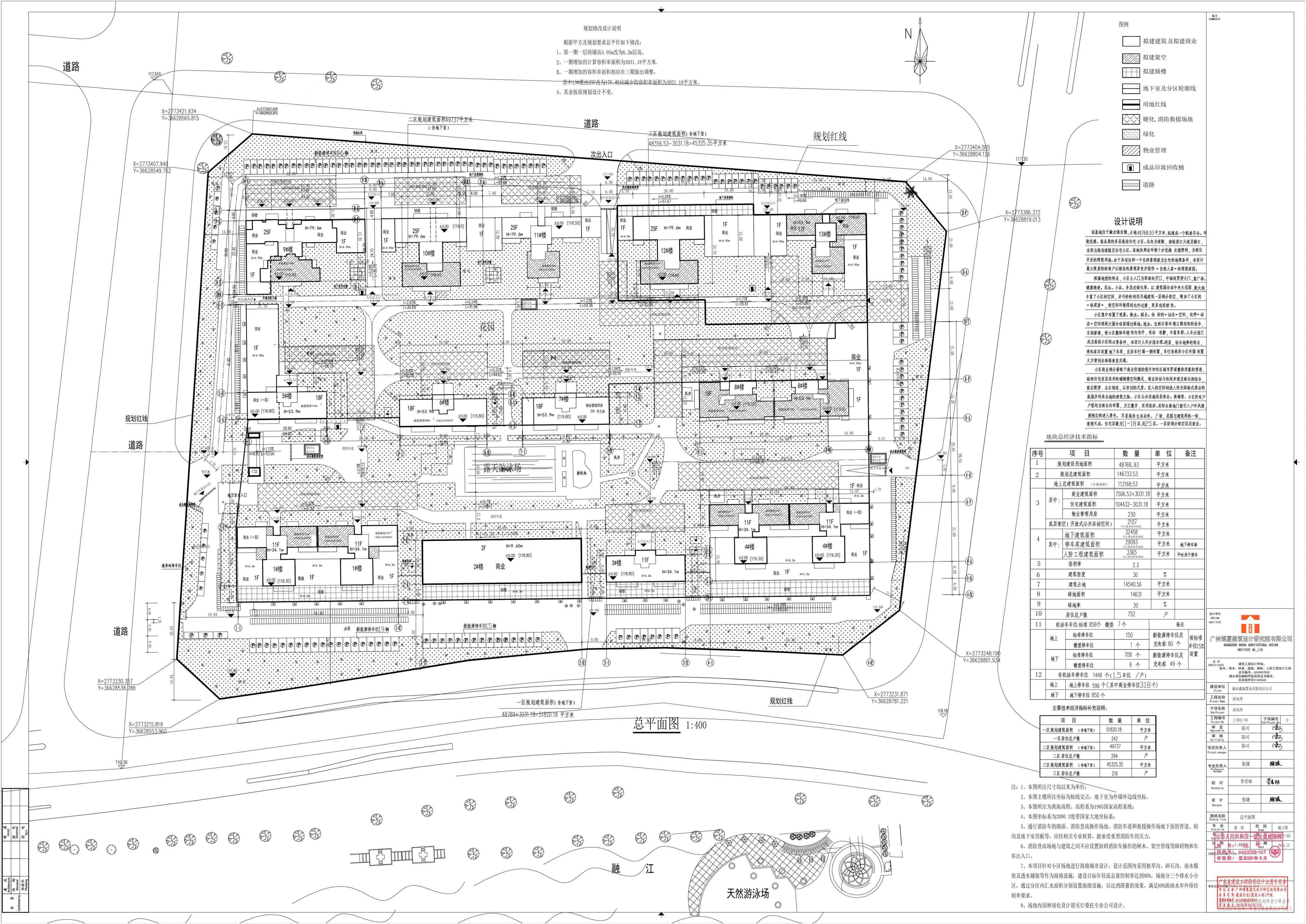
 “清水湾”项目位于广西融水苗族自治县融水镇东安南路2号,该项目总平面规划设计方案于2020年8月19日通过我局审批。根据融水鑫诚置业有限公司提交的申请,现将“清水湾”总平面规划设计调整方案公告如下:

一、总平面规划方案调整内容:

(一)小区设计临街商铺一层建筑高度由4.95米调整为6.2米,面积增加3031.18㎡;13#楼层高由25F调整为17F,面积减少3031.18㎡的面积,小区总户数由776户调整为752户。

(二)1号楼前广场南面及西面部分机动车位调整为部分非机动车位;4号、8号、13号楼东面广场部分机动车位有所调整;9号、10号、11号、12号、13号楼北面广场部分非机动车位调整为机动车位;1号、5号、9号楼西面广场机动车及非机动车布局及数量整体有所调整;调整后机动车停车位数量由856个增加至858个,其中地上停车位150个,地下停车位708个。调整后地上的机动车位与原报建车位数量不变。

(三)优化1号楼、4号楼的消防扑救面;取消5号楼与9号楼之间西侧的回车道;优化5号楼和7号楼的消防救援场地,先硬化后部分用草砖铺设。

(四)园林景观根据消防扑救面、车道、机动车位及非机动车位的调整而作相应优化,调整后绿地率不变。

二、根据《中华人民共和国城乡规划法》及相关法律法规的规定,现按有关程序将“清水湾”规划设计方案进行公示,征求利害关系人意见,并召开听证会。

三、相关利害关系人对上述调整方案有意见的,可通过书面方式或在听证会上发言的方式提出。书面意见和参加听证会申请请于2025年7月13日前送至融水苗族自治县自然资源和规划局规划股(联系电话: 0772-5129737)。

四、参加听证会人员应于2025年7月15日前向融水苗族自治县自然资源和规划局规划股提交申请表及个人身份证明、利害关系证明,并准时参加听证会,对听证会主持人员组成有异议的,应在会前提出。参加听证会的共同利害关系人人数较多的,应选取代表作为发言人,其余参加会议的共同利害关系人可通过书面或委托代表发言的方式表达意见。

五、公示地点:“清水湾”项目所在地和广西柳州融水苗族自治县人民政府门户网站(http://www.rongshui.gov.cn/xwzx/tzgg)。

六、公示时间: 2025年6月14日至2025年7月13日。

七、听证时间:2025年7月15日上午11点00分。

八、听证地点:融水苗族自治县自然资源和规划局五楼会议室。



水苗族自治县自然资源和规划局

2025年6月13日



融水苗族自治县人民政府主办 地址:融水镇拱城街17号
联系方式:rswg@163.com
网站标识码:4502250002